Verhuurd onder voorbehoud: Pontsteiger 242
1014ZP Amsterdam (Appartement)
€ 2.112,- /mnd
Verhuurd onder voorbehoud: Pontsteiger 242
1014ZP Amsterdam (Appartement)
€ 2.112,- /mnd
Omschrijving
** Per direct beschikbaar **
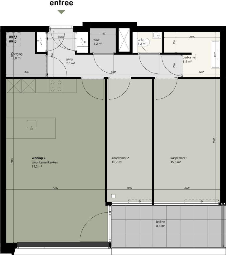
Een driekamerappartement van 77 m² op de 1e verdieping. Ben je op zoek naar een woning voor jou en je partner? Of zoekt je naar alle ruimte voor jezelf? Dan is dit appartement waar je naar op zoek bent. Dit appartement heeft een balkon van 9 m² op het zuidwesten met uitzicht op de Westelijke binnenstad. Doordat het appartement wordt verwarmd middels vloerverwarming, zijn er geen radiatoren aanwezig en heb je nóg meer ruimte om alles in te richten naar jouw smaak.
De keuken is het type wit/marmerblad en is van het gerenommeerde Duitse merk Leicht. De greeploze keuken is voorzien van een keramisch blad dat hitte- en krasbestendig is.
De keuken is voorzien van de volgende inbouwapparatuur van Siemens: vaatwasmachine, inductiekookplaat met een flexzone, combinatie magnetron/stoomoven, combinatie magnetron/hete lucht oven, koelkast, vrieskast met drie laden, afzuigkap (recirculatie) en een Quooker voor direct kokend water. Kortom, een volledig uitgeruste keuken, voor heerlijke maaltijden.
Het appartement beschikt over een luxe badkamer van het type beige welke is uitgerust met een inloopdouche, dubbele wastafel en elektrische handdoekenradiator. Het sanitair is van het merk Sphinx (serie 345). Er is een separaat toilet.
Ook beschik je over twee plaatsen in de fietsenstalling en is er een externe berging.
Een parkeerplek in de ondergelegen parkeergarage huren is optioneel.
- Financieel -
• Huurprijs: € 1.973,- per maand
• Servicekosten: € 160,- per maand.
- Pontsteiger Assistent -
In Pontsteiger staat de Pontsteiger Assistant (PA) elke dag voor je klaar. Een unieke service, exclusief voor de bewoners van Pontsteiger. Sleutels in het IJ laten vallen? De PA regelt nieuwe voor je. Vrienden op bezoek? De PA laat ze voor je binnen. Op zoek naar een betrouwbare hulp? De PA vindt er een voor je. Of heb je behoefte aan iets anders? De Pontsteiger Assistant doet er alles aan om je te helpen. Je regelt het gemakkelijk via de Pontsteiger app, website of gewoon persoonlijk bij de Personal Assistant in het gebouw. De PA is op vaste dagen en tijden aanwezig om je van dienst te zijn.
- Huurperiode -
Een huurovereenkomst wordt aangegaan voor ten minste één jaar en wordt vanaf dan verlengd met onbepaalde tijd. Na de minimale termijn van 12 kalendermaanden geldt er een opzegtermijn van 1 kalendermaand.
- Inkomenseis -
Om een woning te huren kun je de volgende inkomenseis als richtlijn aanhouden:
Het bruto jaarinkomen (verminderd met eventuele betalingsverplichtingen, zoals alimentatie, hypotheken, persoonlijke leningen e.d.) moet zo hoog zijn als:
* Bij 1 inkomen:
• Het bruto-jaarinkomen moet 45x de kale maandhuur zijn, bij een huurprijs die hoger ligt dan € 1.600. Omgerekend is deze berekening van toepassing wanneer jouw bruto-jaarinkomen € 72.000 of hoger is.
* Bij 2 inkomens
• Bij 2 inkomens worden de bruto-jaarinkomens van beide partners bij elkaar opgeteld om het gezamenlijk rekeninkomen te bepalen. Vervolgens wordt er getoetst aan de hand van de onderlinge verhouding tussen de beide partnerinkomens binnen dit gezamenlijk rekeninkomen.
• Jullie mogen beide inkomens voor 100% meetellen, mits één van jullie minimaal 70% van jullie totale gezamenlijk rekeninkomen verdient. De verhouding is dan 70/30 of hoger (bijvoorbeeld 80/20).
- Interesse? -
Heb je interesse in deze fantastische woning?
Reageer dan via de interesse button in deze advertentie. Wij nemen contact met je op voor een bezichtiging.
De gepresenteerde foto's zijn van een ander appartement in dit project, maar de afwerking is vergelijkbaar. Aan deze foto's kunnen geen rechten worden ontleend.
Gebruik van deze site is onderworpen aan de voorwaarden en beperkingen zoals genoemd in de disclaimer.
Kenmerken
| Huurprijs | € 2.112,- /mnd |
|---|---|
| Servicekosten | € 160,- /mnd |
| Waarborg |
Vast inkomen: € 2.112,- / Zelfstandig ondernemers: € 4.224,-
(Let op: dit is een indicatie, afwijkende eisen kunnen voorkomen.) |
| Woonoppervlakte | 76 m2 |
| Slaapkamers | 2 |
| Energielabel | A |
| WWS Punten | 242 |
| Status | Verhuurd onder voorbehoud |
| Beschikbaar vanaf | Per direct |
| Complex | 13861-10 Pontsteiger te Amsterdam (meer informatie over het complex) |
