Gereserveerd: Kennedylaan 456
3533KN Utrecht (Appartement)
€ 1.339,52 /mnd
Gereserveerd: Kennedylaan 456
3533KN Utrecht (Appartement)
€ 1.339,52 /mnd
Omschrijving
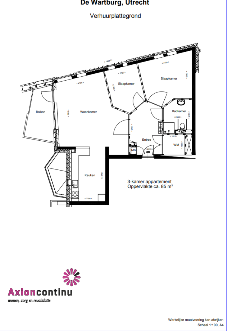
Te huur: Serviceappartementen De Wartburg
Bent u op zoek naar een comfortabel appartement waar u als senior zelfstandig kunt wonen, maar met zorg en voorzieningen binnen handbereik? In De Wartburg in Utrecht bieden wij ruime, gelijkvloerse appartementen voor senioren van 65 jaar en ouder.
Vrije sector huurappartementen
In de nieuwbouw zijn 74 gelijkvloerse appartementen in de vrije sector, in drie types. Er zijn 63 tweekamerwoningen met onderling kleine verschillen. De oppervlaktes variëren van 63 tot 67 m2. Vijf driekamerappartementen hebben een oppervlakte van 98 m2. Zes driekamerwoningen zijn tussen de 91 en 104 m2.
Alle appartementen hebben een balkon of tuin. De woningen hebben een hoog afwerkingsniveau en beschikken over onder meer een keukeninrichting met apparatuur.
Sociale huurappartementen
De 32 sociale huurappartementen bevinden die zich in de lichte gebouwen naast De Wartburg. De appartementen verschillen in grootte en zijn geschikt voor zowel alleenstaanden als paren. De woningen zijn gelijkvloers en hebben een open keuken, een badkamer en een slaapkamer. Sommigen beschikken over een balkon of een tuin.
Wat bieden wij:
• Faciliteiten: De Wartburg biedt uitgebreide voorzieningen, zoals een restaurant waar u kunt genieten van een warme maaltijd als er plek is, een gezellige ontmoetingsruimte voor activiteiten en diverse sociale evenementen.
• Zorg en veiligheid: Mocht het echt nodig zijn kunt u thuiszorg ontvangen van Axioncontinu. Wij bieden onder meer wijkverpleging of het volledig pakket thuis bieden. Denk daarbij aan hulp bij het douchen of het innemen van medicatie tot intensieve verpleging. We bespreken graag met u de mogelijkheden. De zorgbemiddelaar van AxionContinu kan u informeren.
• Wooncomfort: De appartementen zijn uitgerust met een open keuken (elektrisch koken), een comfortabele badkamer, en centrale verwarming. De rustige, groene omgeving biedt een fijn thuis.
Extra informatie:
• Liften: Bij de ingangen bevinden zich de liften, dit zijn zogenaamde brandcardliften.
• Receptie: Bij de hoofdingang van De Wartburg is een receptie. Hier kunt u terecht met al uw vragen.
• Servicekosten: U betaalt maandelijks een voorschot. Eens per jaar krijgt u een definitieve afrekening. Zo nodig wordt het bedrag van het voorschot aangepast.
De Wartburg biedt een veilige, comfortabele en zelfstandige woonomgeving, waar u kunt genieten van privacy en vrijheid, terwijl u de zekerheid heeft van zorg en extra voorzieningen.
Gebruik van deze site is onderworpen aan de voorwaarden en beperkingen zoals genoemd in de disclaimer.
Kenmerken
| Huurprijs | € 1.339,52 /mnd |
|---|---|
| Servicekosten | € 97,16 /mnd |
| Waarborg |
Vast inkomen: € 1.339,52 / Zelfstandig ondernemers: € 2.679,04
(Let op: dit is een indicatie, afwijkende eisen kunnen voorkomen.) |
| Energielabel | A+ |
| WWS Punten | 277 |
| Status | Gereserveerd |
| Beschikbaar vanaf | Per direct |
| Complex | De Wartburg (meer informatie over het complex) |
Locatie
Verhuurkantoor
MVGM Amersfoort
Van Asch van Wijckstraat 55
3811LP Amersfoort
+31 88 43 24 780
