Verhuurd onder voorbehoud: Londenstraat 60
2711DD Zoetermeer (Appartement)
€ 1.200,61 /mnd
Verhuurd onder voorbehoud: Londenstraat 60
2711DD Zoetermeer (Appartement)
€ 1.200,61 /mnd
Omschrijving
PMT zet huurders in het zonnetje!
Een mooi voorbeeld van dergelijke huurwoningen binnen de portefeuille van PMT betreffen de woningen aan de Londenstraat, Oxfordstraat en Engelandlaan in Zoetermeer.
Leuke appartementen en eengezinswoningen Rust, ruimte, privacy en diverse voorzieningen op loopafstand!
En dat huurders hier met grote tevredenheid wonen blijkt wel uit het feit dat sommige huurders er al meer dan 25 jaar wonen!! En dat is voor PMT uiteraard bijzonder waardevol!
Als blijk van waardering heeft PMT daarom afgelopen week maar liefst 61 lang zittende huurders in het zonnetje gezet door ze te verrassen niet een prachtige bos bloemen!
Over PMT
PMT is in omvang het derde pensioenfonds van Nederland. Zij belegt onder andere in staatsobligaties en vastgoed. Het beleggingsrisico wordt beperkt door te spreiden binnen de aandelen en onroerend goed portefeuilles en alleen onroerend goed te selecteren dat aan bepaalde criteria voldoet.
MN is door PMT aangesteld als pensioenuitvoerder en vermogensbeheerder om daarmee het beleggingsrisico te beperken. Het beheer van de Londenstraat is door MN uitbesteedt aan Verwey Vastgoed.
Gebruik van deze site is onderworpen aan de voorwaarden en beperkingen zoals genoemd in de disclaimer.
Kenmerken
| Huurprijs | € 1.200,61 /mnd |
|---|---|
| Servicekosten | € 48,- /mnd |
| Waarborg |
Vast inkomen: € 1.200,61 / Zelfstandig ondernemers: € 2.401,22
(Let op: dit is een indicatie, afwijkende eisen kunnen voorkomen.) |
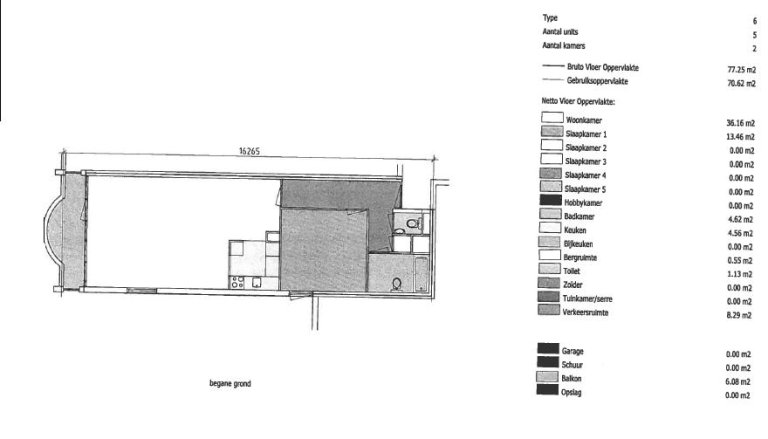
| Woonoppervlakte | 70 m2 |
| Slaapkamers | 1 |
| Energielabel | C |
| WWS Punten | 200 |
| Status | Verhuurd onder voorbehoud |
| Beschikbaar vanaf | Per direct |
| Complex | 4226 Londenstraat 1-206 e.a. Zoetermeer (meer informatie over het complex) |
Locatie
Verhuurkantoor
MVGM Rotterdam
Coolsingel 120
3012AG Rotterdam
+31 88 43 24 700
