Verhuurd onder voorbehoud: Postjesweg 167 R
1062JN Amsterdam (Appartement)
€ 1.228,07 /mnd
Verhuurd onder voorbehoud: Postjesweg 167 R
1062JN Amsterdam (Appartement)
€ 1.228,07 /mnd
Omschrijving
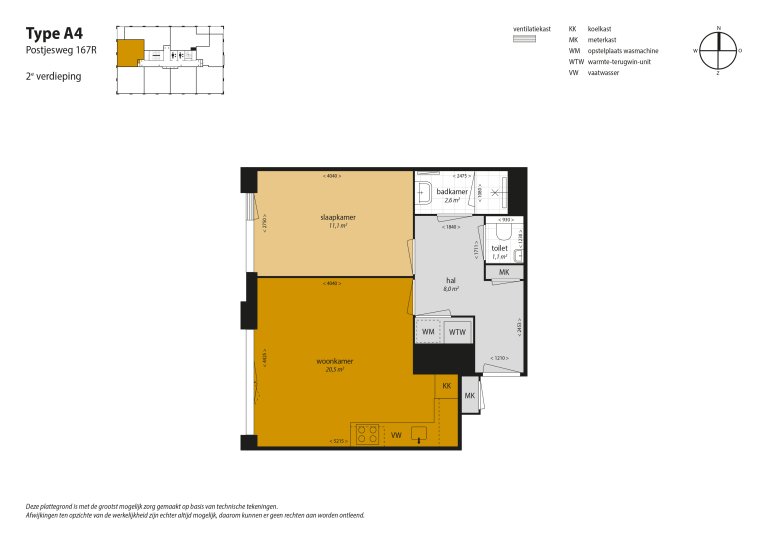
Zodra je de deur opent voel je je meteen thuis. Dit tweekamerappartement van ca. 45m² is perfect voor een koppel of alleenstaande. De hal geeft je toegang naar een aparte wc, badkamer, meterkast, slaapkamer en de woonkamer. Deze woonkamer wordt overspoeld met natuurlijk licht door de grote ramen, waardoor je van de zonnestralen kunt genieten in een luie stoel of zitgedeelte.Terwijl je een verrukkelijke maaltijd kookt in de open keuken, klets je lekker door met het bezoek in de woonkamer. De keuken is voorzien van een koelkast, inductieplaat, vaatwasser, afzuigkap en een koel/vrieskast. Je keukengerei kun je perfect kwijt in de verschillende ruime kastjes en lades in de keuken. De slaapkamer is prettig in te delen met een tweepersoonsbed en een grote kast. De badkamer is voorzien met een fijne douche en wastafel. Zie jij jezelf al wonen hier?
De foto's zijn ter indicatie, hier mogen geen rechten aan worden ontleend.
Gebruik van deze site is onderworpen aan de voorwaarden en beperkingen zoals genoemd in de disclaimer.
Kenmerken
| Huurprijs | € 1.228,07 /mnd |
|---|---|
| Servicekosten | € 85,- /mnd |
| Waarborg |
Vast inkomen: € 1.228,07 / Zelfstandig ondernemers: € 2.456,14
(Let op: dit is een indicatie, afwijkende eisen kunnen voorkomen.) |
| Woonoppervlakte | 46 m2 |
| Slaapkamers | 1 |
| Energielabel | A+++ |
| WWS Punten | 186 |
| Status | Verhuurd onder voorbehoud |
| Beschikbaar vanaf | 1 maart 2026 |
| Complex | Fortitudo te Amsterdam (meer informatie over het complex) |
