Verhuurd onder voorbehoud: Parnassusweg 961
1082LZ Amsterdam (Eengezinswoning)
€ 1.647,- /mnd
Verhuurd onder voorbehoud: Parnassusweg 961
1082LZ Amsterdam (Eengezinswoning)
€ 1.647,- /mnd
Omschrijving
Op een prachtige locatie aan de Zuidas, bieden wij dit leuke appartement aan. Het appartement beschikt over 1 slaapkamer, een woonkamer met open hoekkeuken en een modern ingerichte badkamer. Dit appartement is gelegen op de 2e etage in complex GEORGE op de Parnassusweg.
Het appartement is onderdeel van de Gershwin Brothers. Het complex beschikt over 84 woningen met verschillende woontypes. De woontoren is van alle gemakken voorzien. Vanuit de stijlvolle gemeenschappelijke entree bereik je de 2 liften naar alle 11 etages. Alle appartement beschikken over een eigen berging. Daarnaast is er een gezamenlijke fietsenstalling waar je je fiets goed neer kan zetten.
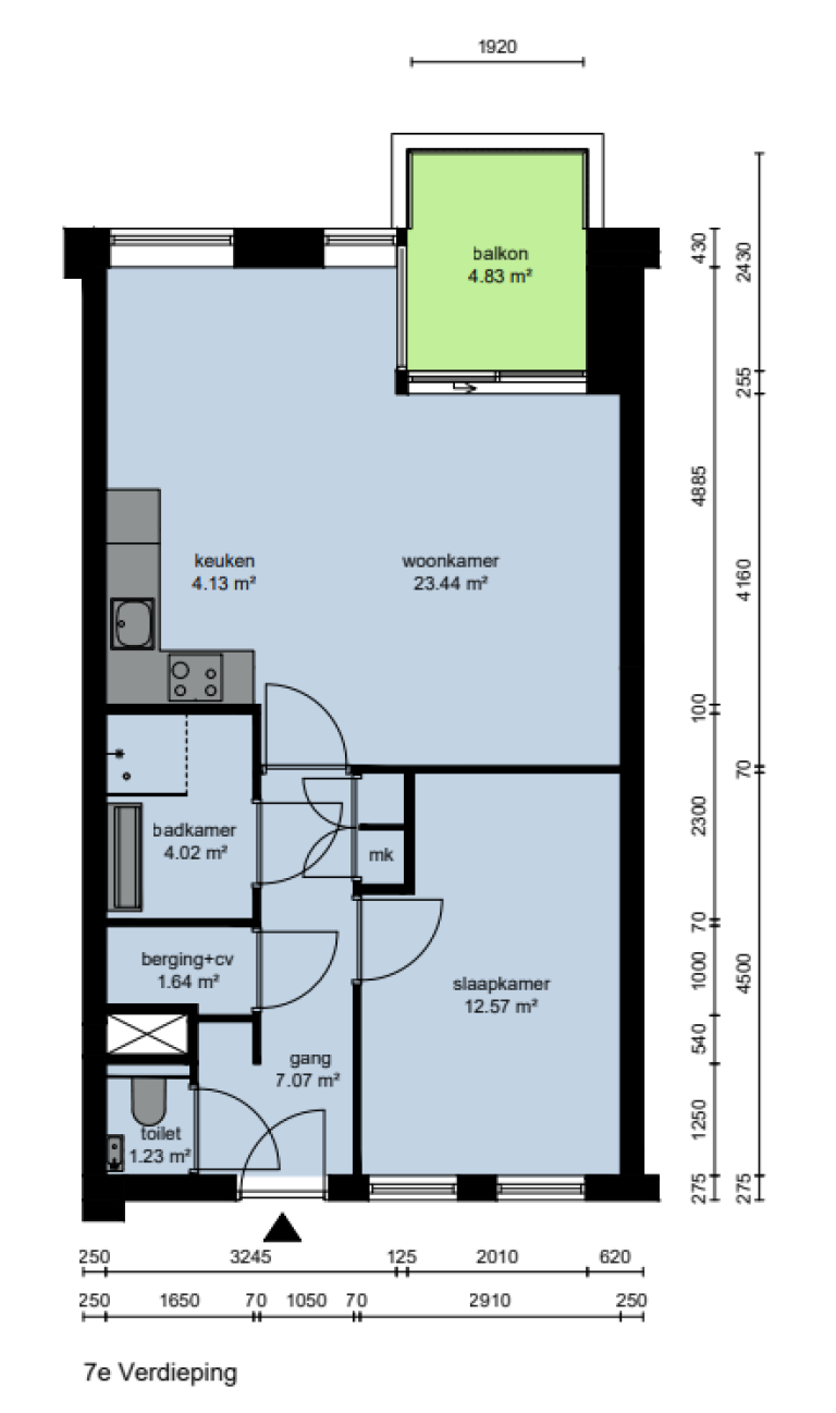
Het appartement heeft een oppervlakte van circa 55 vierkante meter. Vanuit de hal zijn alle vertrekken van de woning te bereiken. De woonkamer met open hoekkeuken is gelegen aan de achterzijde van het appartement. De open hoekkeuken is voorzien van alle benodigde inbouwapparatuur zoals een combi oven/magnetron, afzuigkap, koelkast met vriesvak en een vaatwasser. Vanuit de woonkamer is de toegang naar het balkon van circa 5 m2. De slaapkamer is circa 13 vierkante meter en is gelegen aan de voorzijde van het appartement. De badkamer is uitgerust met een inloopdouche, wastafel met dubbele kranen en een handdoekradiator. Daarnaast beschikt het appartement over een inpandige berging met wasmachine aansluiting en een separaat toilet.
Het appartementencomplex staat midden in de Zuidas. Ook wel bekend als de internationale kennis- en zakencentrum van Amsterdam. Naast werken is het ook een heerlijke plek om te wonen en leven. De Zuid-as is namelijk centraal gelegen ten opzichte van winkels, restaurants supermarkten, uitgaansgelegenheden, scholen en sportcentra. Het Beatrixpark of Amsterdamse Bos is ook op loopafstand te bereiken. Vanuit het appartement loop je in enkele minuten naar station Amsterdam Zuid voor de trein, metro en bus. Met de auto ben je zo op de Ring A10 naar steden als Utrecht en Den Haag.
Wij verhuren geen parkeerplaatsen bij de woning, maar voor de bewoners van Gershwin Brothers geldt een speciale aanbieding. Als bewoner kunt u namelijk tegen een gereduceerd tarief een bewonersabonnement afsluiten voor het huren van een parkeerplaats in de ondergrondse parkeergarage.
Huurvoorwaarden
- Inkomenseis is 3,5 keer de maandhuur bij 1 huurder
- Inkomenseis is 4 keer de maandhuur bij 2 huurders
- Waarborgsom 1 maand huur
- Contract voor onbepaalde tijd met een minimum duur van 12 kalendermaanden
- Niet mogelijk voor studenten om te huren
- Garantstelling niet mogelijk
* De afbeeldingen zijn van een vergelijkbare woning in hetzelfde complex
Gebruik van deze site is onderworpen aan de voorwaarden en beperkingen zoals genoemd in de disclaimer.
Kenmerken
| Huurprijs | € 1.647,- /mnd |
|---|---|
| Servicekosten | € 75,- /mnd |
| Waarborg |
Vast inkomen: € 1.647,- / Zelfstandig ondernemers: € 3.294,-
(Let op: dit is een indicatie, afwijkende eisen kunnen voorkomen.) |
| Energielabel | A++ |
| WWS Punten | 201 |
| Status | Verhuurd onder voorbehoud |
| Beschikbaar vanaf | Per direct |
| Complex | George Gershwin Brothers (meer informatie over het complex) |
Locatie
Verhuurkantoor
MVGM Amsterdam
Naritaweg 211
1043CB Amsterdam
+31 88 43 24 700
