Verhuurd onder voorbehoud: Parnassusweg 953
1082LZ Amsterdam (Eengezinswoning)
€ 1.647,- /mnd
Verhuurd onder voorbehoud: Parnassusweg 953
1082LZ Amsterdam (Eengezinswoning)
€ 1.647,- /mnd
Omschrijving
Beschikbaar per 1 december:
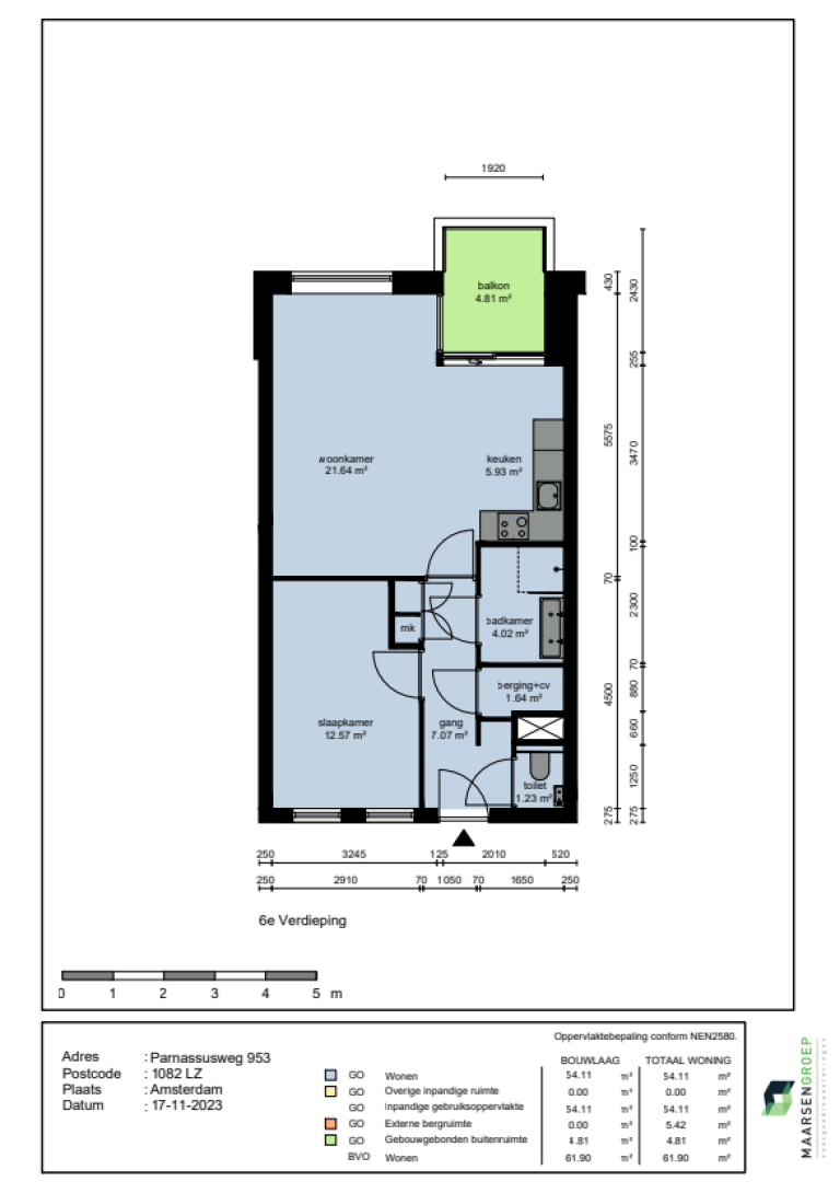
Op een prachtige locatie aan de Zuidas, bieden wij dit mooie appartement aan. Het appartement beschikt over 3 slaapkamers, een woonkamer met open hoekkeuken, moderne badkamer en balkon. Dit appartement is gelegen op de 10e etage in complex George op de Parnassusweg.
Het appartement is onderdeel van de Gershwin Brothers. Het complex beschikt over 84 woningen met verschillende woontypes. De woontoren is van alle gemakken voorzien. Vanuit de stijlvolle gemeenschappelijke entree bereik je de 2 liften naar alle 11 etages. Alle appartement beschikken over een eigen berging. Daarnaast is er een gezamenlijke fietsenstalling waar u uw fiets of scooter goed neer kan zetten.
Het hoek appartement is gelegen op de 10e verdieping van het complex. De woonkamer met open hoekkeuken van circa 28 vierkante is gelegen aan de voorzijde van het complex. De keuken is voorzien van alle benodigde inbouwapparatuur, zoals een inductiekookplaat, afzuigkap, combi oven, vaatwasser en koelkast met vriesvak. Tussen de keuken en het woongedeelte is toegang naar het balkon (W) van circa 5 vierkante meter. De twee slaapkamers zijn van beide goed formaat (circa 10 en 12 vierkante meter). De moderne badkamer is uitgerust met een inloopdouche, wasbak met dubbele kranen en handdoekradiator. Daarnaast heeft het appartement een separaat toilet en inpandige berging met wasmachine aansluiting. Verder is het appartement voorzien van vloerverwarming.
Het appartementencomplex staat midden in de Zuidas. Ook wel bekend als de internationale kennis- en zakencentrum van Amsterdam. Naast werken is het ook een heerlijke plek om te wonen en leven. De Zuid-as is namelijk centraal gelegen ten opzichte van winkels, restaurants supermarkten, uitgaansgelegenheden, scholen en sportcentra. Het Beatrixpark of Amsterdamse Bos is ook op loopafstand te bereiken. Vanuit het appartement loop je in enkele minuten naar station Amsterdam Zuid voor de trein, metro en bus. Met de auto ben je zo op de Ring A10 naar steden als Utrecht en Den Haag.
kale huurprijs: €2896,00
servicekosten: €75,00
waarborgsom: 2 maanden kale huur.
Wij verhuren geen parkeerplaatsen bij de woning, maar voor de bewoners van Gershwin Brothers geldt een speciale aanbieding. Als bewoner kunt u namelijk tegen een gereduceerd tarief een bewonersabonnement afsluiten voor het huren van een parkeerplaats in de ondergrondse parkeergarage.
**Let op: De getoonde foto's en informatie zijn ter indicatie. Hieraan kunnen geen rechten worden ontleend.**
Gebruik van deze site is onderworpen aan de voorwaarden en beperkingen zoals genoemd in de disclaimer.
Kenmerken
| Huurprijs | € 1.647,- /mnd |
|---|---|
| Servicekosten | € 75,- /mnd |
| Waarborg |
Vast inkomen: € 1.647,- / Zelfstandig ondernemers: € 3.294,-
(Let op: dit is een indicatie, afwijkende eisen kunnen voorkomen.) |
| Woonoppervlakte | 55 m2 |
| Slaapkamers | 1 |
| WWS Punten | 203 |
| Status | Verhuurd onder voorbehoud |
| Beschikbaar vanaf | 1 mei 2026 |
| Complex | George Gershwin Brothers (meer informatie over het complex) |
Locatie
Verhuurkantoor
MVGM Amsterdam
Naritaweg 211
1043CB Amsterdam
+31 88 43 24 700
