Te huur: Olga De Haasstraat 489
1095PG Amsterdam (Appartement)
€ 1.299,82 /mnd
Te huur: Olga De Haasstraat 489
1095PG Amsterdam (Appartement)
€ 1.299,82 /mnd
Omschrijving
Justus – Middenhuur
Alle woningen in Justus zijn middenhuur woningen. Middenhuur is voor wie teveel verdient voor sociale huur, maar te weinig voor vrije sector huur of koop. Betaalbaarheid is een belangrijke factor bij middenhuur woningen. Daarom zijn er langjarige huurprijsafspraken tussen de verhuurder en de gemeente Amsterdam.
Inkomensgrenzen middeninkomens
Er is ook een inkomensgrens voor huishoudens met een middeninkomen vastgesteld. De grens is vastgelegd in artikel 10 van de Huisvestingswet. De volgende inkomensgrenzen gelden per 1 januari 2026:
• € 70.149 voor eenpersoonshuishoudens;
• € 93.531 voor meerpersoonshuishoudens.
Justus - Ligging
Wonen in Justus is genieten van een uitzicht over het IJ en de stad Amsterdam! Waar enkele schepen liggen te wachten voor de Oranjesluizen, welke zich bevindt aan de oostzijde van het IJ. De Oranjesluizen zijn door Justus Dirks ontworpen en gebouwd in de 19e eeuw.
Nu, zoveel jaar later, leeft de naam Justus voort in dit gebied. Waar Justus Dirks aan de wieg stond van de Oranjesluizen, is het gebouw Justus de start van een levendige en bruisende nieuwe stadswijk van Amsterdam. En jij kan daar onderdeel van worden!
De wijk zelf is autoluw, maar het gebouw biedt ruimte aan 33 parkeerplaatsen en een ruime fietsenstalling.
Justus - Wonen
Justus is een markant gebouw op een toplocatie binnen Amsterdam. Er is een combinatie van laag- en hoogbouw. Onderin ruimte voor fitness en horeca.
Het gebouw kent maar liefst 32 verdiepingen en biedt ruimte aan 289 woningen, variërend van ca 50 tot ca 72 m2 met twee of drie slaapkamers en beschikken allen over een balkon.
Wanneer je graag even wilt luchten, biedt het dakterras op de 24ste etage een prachtige uitkomst met zicht over de stad Amsterdam.
* de getoonde afbeeldingen dienen enkel ter impressie
Gebruik van deze site is onderworpen aan de voorwaarden en beperkingen zoals genoemd in de disclaimer.
Kenmerken
| Huurprijs | € 1.299,82 /mnd |
|---|---|
| Servicekosten | € 80,- /mnd |
| Waarborg |
Vast inkomen: € 1.299,82 / Zelfstandig ondernemers: € 2.599,64
(Let op: dit is een indicatie, afwijkende eisen kunnen voorkomen.) |
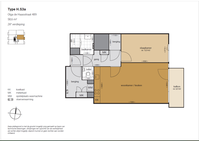
| Woonoppervlakte | 58 m2 |
| Slaapkamers | 1 |
| WWS Punten | 210 |
| Status | Te huur |
| Beschikbaar vanaf | 1 mei 2026 |
| Complex | 2666 Justus te Amsterdam (meer informatie over het complex) |
