Te huur: Gouden Griffelplantsoen 10
2652GR Berkel En Rodenrijs (Eengezinswoning)
€ 1.695,- /mnd
Te huur: Gouden Griffelplantsoen 10
2652GR Berkel En Rodenrijs (Eengezinswoning)
€ 1.695,- /mnd
Omschrijving
Ruime eengezinswoning met 4 slaapkamers te huur – Gouden Griffelplantsoen 10, Berkel en Rodenrijs
Huurprijs: €1.695,- per maand | Beschikbaar per 15 december 2025
Ben je op zoek naar een ruime, comfortabele woning in een kindvriendelijke en groene omgeving? Dan is deze moderne eengezinswoning aan het Gouden Griffelplantsoen 10 in Berkel en Rodenrijs precies wat je zoekt! Met een woonoppervlakte van ca. 125 m², vier volwaardige slaapkamers, een zonnige tuin én een gunstige ligging, biedt deze woning alles wat je nodig hebt voor fijn en rustig wonen.
Indeling van de woning
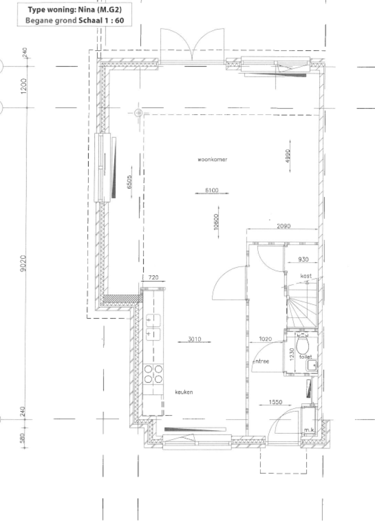
Bij binnenkomst word je verwelkomd in een ruime hal met toegang tot het toilet en de lichte woonkamer. De woonkamer is heerlijk ruim en heeft grote raampartijen die zorgen voor veel natuurlijk licht. De open keuken aan de voorzijde van de woning is voorzien van diverse inbouwapparatuur.
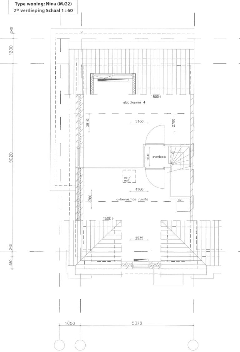
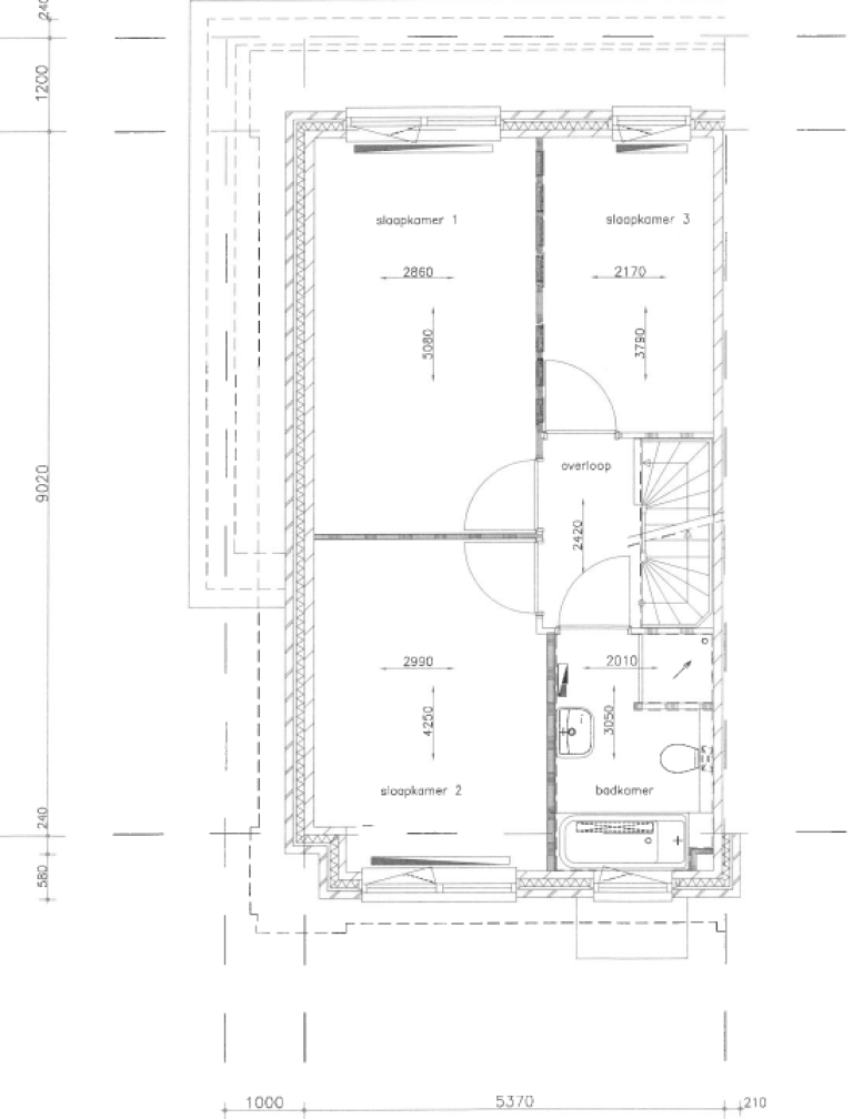
Op de eerste verdieping bevinden zich drie slaapkamers en een nette badkamer met douche, wastafel en tweede toilet. De vierde slaapkamer is te vinden op de zolderverdieping, welke tevens ideaal is als werkruimte of hobbykamer.
Aan de achterzijde van de woning ligt een fraaie tuin, perfect voor zomerse barbecues of gewoon om in alle rust te ontspannen. Daarnaast is er voldoende bergruimte aanwezig en zijn er parkeermogelijkheden in de directe omgeving.
Kenmerken:
Woonoppervlakte: ca. 132 m²
Aantal slaapkamers: 4
Type woning: Eengezinswoning
Buitenruimte: Tuin aan de achterzijde
Energielabel A – energiezuinig en duurzaam
Huurprijs: €1.695,- per maand
Beschikbaar per: 15 december 2025
De omgeving
De woning is gelegen in een rustige en kindvriendelijke wijk met veel groen en speelgelegenheden in de directe omgeving. Op korte afstand vind je diverse scholen, winkels, sportverenigingen en openbaar vervoer. Bovendien ben je binnen enkele minuten in het centrum van Berkel en Rodenrijs en is ook de bereikbaarheid richting Rotterdam, Den Haag en Delft uitstekend dankzij de nabijgelegen uitvalswegen en het openbaar vervoer (o.a. RandstadRail).
Interesse?
Heb je interesse in deze woning? Dan kun je eenvoudig een bezichtigingsaanvraag indienen via onze website. Wacht niet te lang, want woningen als deze zijn snel verhuurd!
**let op deze foto's en tekst dienen ter indicatie, hier kunnen geen rechten aan worden ontleed.
Gebruik van deze site is onderworpen aan de voorwaarden en beperkingen zoals genoemd in de disclaimer.
Kenmerken
| Huurprijs | € 1.695,- /mnd |
|---|---|
| Waarborg |
Vast inkomen: € 1.695,- / Zelfstandig ondernemers: € 3.390,-
(Let op: dit is een indicatie, afwijkende eisen kunnen voorkomen.) |
| Woonoppervlakte | 132 m2 |
| Slaapkamers | 4 |
| Energielabel | A |
| WWS Punten | 300 |
| Status | Te huur |
| Beschikbaar vanaf | 15 december 2025 |
| Complex | 9486 C. Bruijnstr ea Berkel en Rodenrijs (meer informatie over het complex) |
Locatie
Verhuurkantoor
MVGM Rotterdam
Coolsingel 120
3012AG Rotterdam
+31 88 43 24 700
