Gereserveerd: Beren 33
9714DW Groningen (Appartement)
€ 1.140,- /mnd
Gereserveerd: Beren 33
9714DW Groningen (Appartement)
€ 1.140,- /mnd
Omschrijving
Ciboga
In het hart van de stad Groningen verhuren wij namens Amvest Vastgoed in de nieuwe woonwijk CiBoGa (Circus, Boden en Gasterrein) glasappartementen, cityappartementen en eengezinswoningen. Per direct is een appartement aan de 33 beschikbaar.
De nieuwe woonwijk CiBoGa maakt onderdeel uit van de Groninger binnenstad. Voorzieningen als winkels, scholen en sportfaciliteiten bevinden zich in de nabijheid.
De auto zal zoveel mogelijk uit het straatbeeld geweerd worden. Er kan geparkeerd worden in de parkeergarage onder het complex.
De woning welke boven het winkelcentrum gelegen is, is bereikbaar per lift.
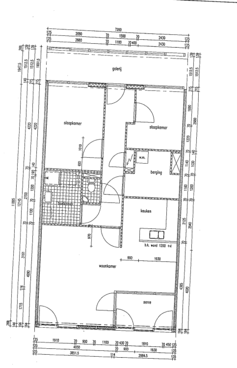
Indeling
In het centrum van Groningen verhuren wij namens Amvest Vastgoed in de woonwijk CiBoGa 101 luxe glasappartementen en 3 cityappartementen.
De woonwijk CiBoGa maakt onderdeel uit van de Groninger binnenstad en voorzieningen zoals winkels, scholen en sportfaciliteiten bevinden zich in de nabijheid. De wijk is zo opgezet dat auto's zoveel mogelijk uit het straatbeeld geweerd worden. Er kan geparkeerd worden in de parkeergarage onder het complex.
In Schots 1, op de hoek van de Korreweg, Boterdiep en Bloemsingel, verhuren wij 101 glasappartementen in verschillende types. Het complex bestaat uit drie torens van zeven woonlagen. Het complex is geheel bekleed en geeft de glasgevel een groene uitstraling. De verschillen in transparantie, reflectie en matheid creëren een bijzonder patroon op de gevel. De appartementen beschikken over grote ramen die van vloer tot plafond reiken.
Alle appartementen zijn met een lift bereikbaar. Indeling glasappartementen (verschillende types):
royale woonkamer met open keuken, twee slaapkamers, apart toilet en een ruime inpandige berging. In enkele gevallen heeft het appartement een extra eet- of studeerkamer. Alle appartementen hebben een inpandige serre. De halfopen keuken heeft een standaard inrichting waarin uitsluitend elektrisch gekookt kan worden.
In Schots 2 verhuren wij 3 city appartementen. De appartementen zijn verre van standaard en hebben een speelse en asymmetrische indeling. De appartementen maken deel uit van een complex bestaande uit 44 cedarwoningen. De woningen zijn volledig bekleed met grote, houten Western Red Cedar panelen.
De maissonette woningen hebben alleen een groot dakterras ( 13m2), de 17 grondgebonden eengezinswoningen aan de Monnikhof hebben allen een tuin van ongeveer 50m2. Een zes-tal woningen hebben een dakterras van ongeveer 25m2.
Gebruik van deze site is onderworpen aan de voorwaarden en beperkingen zoals genoemd in de disclaimer.
Kenmerken
| Huurprijs | € 1.140,- /mnd |
|---|---|
| Servicekosten | € 15,- /mnd |
| Waarborg |
Vast inkomen: € 1.140,- / Zelfstandig ondernemers: € 2.280,-
(Let op: dit is een indicatie, afwijkende eisen kunnen voorkomen.) |
| Woonoppervlakte | 83 m2 |
| Energielabel | C |
| WWS Punten | 191 |
| Status | Gereserveerd |
| Beschikbaar vanaf | 1 januari 2026 |
| Complex | 9180 Ciboga Schots I en II te Groningen (meer informatie over het complex) |
Locatie
Verhuurkantoor
MVGM Groningen
Eemsgolaan 5
9727DW Groningen
+31 88 43 24 700
