Verhuurd onder voorbehoud: Jufferhof 50 W
3011XN Rotterdam (Appartement)
€ 1.620,- /mnd
Verhuurd onder voorbehoud: Jufferhof 50 W
3011XN Rotterdam (Appartement)
€ 1.620,- /mnd
Omschrijving
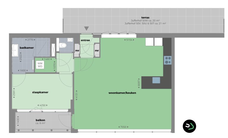
2-kamer appartement met een woonoppervlakte van 70,9m2, een Volledig ingerichte keuken met Siemens inbouwapparatuur en De badkamer heeft een brede wastafel, douche en designradiator. Wijnhaveneiland en Metrostation Leuvehaven ligt op loopafstand, net als station Blaak.
- Huurperiode -
Een huurovereenkomst wordt aangegaan voor ten minste één jaar en wordt vanaf dan verlengd met onbepaalde tijd. Na de minimale termijn van 12 kalendermaanden geldt er een opzegtermijn van 1 kalendermaand.
- Inkomenseis -
Om een woning te huren kun je de volgende inkomenseis als richtlijn aanhouden:
Het bruto jaarinkomen (verminderd met eventuele betalingsverplichtingen, zoals alimentatie, hypotheken, persoonlijke leningen e.d.) moet zo hoog zijn als:
* Bij 1 inkomen:
• Het bruto-jaarinkomen moet 45x de kale maandhuur zijn, bij een huurprijs die hoger ligt dan € 1.600. Omgerekend is deze berekening van toepassing wanneer jouw bruto-jaarinkomen € 72.000 of hoger is.
* Bij 2 inkomens
• Bij 2 inkomens worden de bruto-jaarinkomens van beide partners bij elkaar opgeteld om het gezamenlijk rekeninkomen te bepalen. Vervolgens wordt er getoetst aan de hand van de onderlinge verhouding tussen de beide partnerinkomens binnen dit gezamenlijk rekeninkomen.
• Jullie mogen beide inkomens voor 100% meetellen, mits één van jullie minimaal 70% van jullie totale gezamenlijk rekeninkomen verdient. De verhouding is dan 70/30 of hoger (bijvoorbeeld 80/20).
Interesse? -
Heb je interesse in deze woning?
Reageer dan via de interesse button in deze advertentie en vraag voor deze woning een bezichtiging aan, wij werken door middel van een loting. Wij nemen contact op met de uitgeloten kandidaat.
De gepresenteerde foto's zijn van een ander appartement in dit project, maar de afwerking is vergelijkbaar. Aan deze foto's kunnen geen rechten worden ontleend.
Gebruik van deze site is onderworpen aan de voorwaarden en beperkingen zoals genoemd in de disclaimer.
Kenmerken
| Huurprijs | € 1.620,- /mnd |
|---|---|
| Servicekosten | € 55,- /mnd |
| Waarborg |
Vast inkomen: € 1.620,- / Zelfstandig ondernemers: € 3.240,-
(Let op: dit is een indicatie, afwijkende eisen kunnen voorkomen.) |
| Woonoppervlakte | 70 m2 |
| Slaapkamers | 1 |
| Energielabel | A |
| WWS Punten | 196 |
| Status | Verhuurd onder voorbehoud |
| Beschikbaar vanaf | Per direct |
| Complex | 13876-10 Up Town te Rotterdam (meer informatie over het complex) |
Locatie
Verhuurkantoor
MVGM Amersfoort
Van Asch van Wijckstraat 55
3811LP Amersfoort
+31 88 43 24 700
