Te huur: Schultz Van Hagenstraat 34
3062XJ Rotterdam (Appartement)
€ 2.358,- /mnd
Te huur: Schultz Van Hagenstraat 34
3062XJ Rotterdam (Appartement)
€ 2.358,- /mnd
Omschrijving
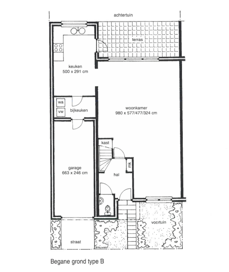
Te huur: Eengezinswoning van 180 m2. De eerste verdieping geeft, via de overloop, toegang tot drie slaapkamers en een comfortabele badkamer met ligbad, separate douche, wastafel en een tweede toilet. De zolderetage, met twee grote dakramen, is geschikt als vierde slaapkamer.
Er is een open keuken aanwezig met daarbij een bijkeuken met aansluiting voor de wasmachine en vaatwasser.
De badkamer beschikt over een ligbad, separate douche, wastafel en een tweede toilet.
Het betreft een tussenwoning met een berging aan straatzijde. Standaard beschikken alle huizen over een kleine voortuin en fijne achtertuin met terras. Voor de auto zijn er volop parkeermogelijkheden in de wijk en zelf direct voor de deur in ruime parkeervakken.
Een sfeervolle wijk met veel groen en een geheel eigen karakter. Kenmerkend zijn de vele fraaie, monumentale herenhuizen. Voor de dagelijkse boodschappen biedt winkelstraat Lusthof een optimaal aanbod. Zowel de landelijke ketens als lokale speciaalzaken zijn hier te vinden. Natuurliefhebbers vinden in de directe omgeving de unieke bomentuin Trompenburg, het Stadsnatuurpark de Esch en het Kralingse Bos en de Kralingse Plas. De wijk is goed bereikbaar via de nabij gelegen snelwegen A16 en A20, hierdoor ligt het centrum van Rotterdam op vijftien minuten afstand. Ook het openbaar vervoer is goed geregeld. Er zijn diverse bus- en metrolijnen van en naar Rotterdam centrum en tussenliggende wijken.
Gebruik van deze site is onderworpen aan de voorwaarden en beperkingen zoals genoemd in de disclaimer.
Kenmerken
| Huurprijs | € 2.358,- /mnd |
|---|---|
| Servicekosten | € 0,- /mnd |
| Waarborg |
Vast inkomen: € 2.358,- / Zelfstandig ondernemers: € 4.716,-
(Let op: dit is een indicatie, afwijkende eisen kunnen voorkomen.) |
| Woonoppervlakte | 180 m2 |
| Energielabel | B |
| WWS Punten | 328 |
| Status | Te huur |
| Beschikbaar vanaf | Per direct |
| Complex | 13471-10 Noordelijk Niertje te Rotterdam (meer informatie over het complex) |
