Verhuurd onder voorbehoud: Goosse van der Windstraat 15
3062XM Rotterdam (Appartement)
€ 2.258,- /mnd
Verhuurd onder voorbehoud: Goosse van der Windstraat 15
3062XM Rotterdam (Appartement)
€ 2.258,- /mnd
Omschrijving
Te huur: Eigentijdse herenhuizen in het groene Kralingen-Oost
Prettig wonen, in moderne herenhuizen met alle voorzieningen bij de hand. Winkelstraat Lusthof biedt een gevarieerd winkelaanbod op tien minuten fietsafstand. Natuurliefhebbers bezoeken het nabij gelegen Kralingse Bos. De A16, A20 en het openbaar vervoer maken de bereikbaarheid van deze wijk optimaal.
Royaal wonen
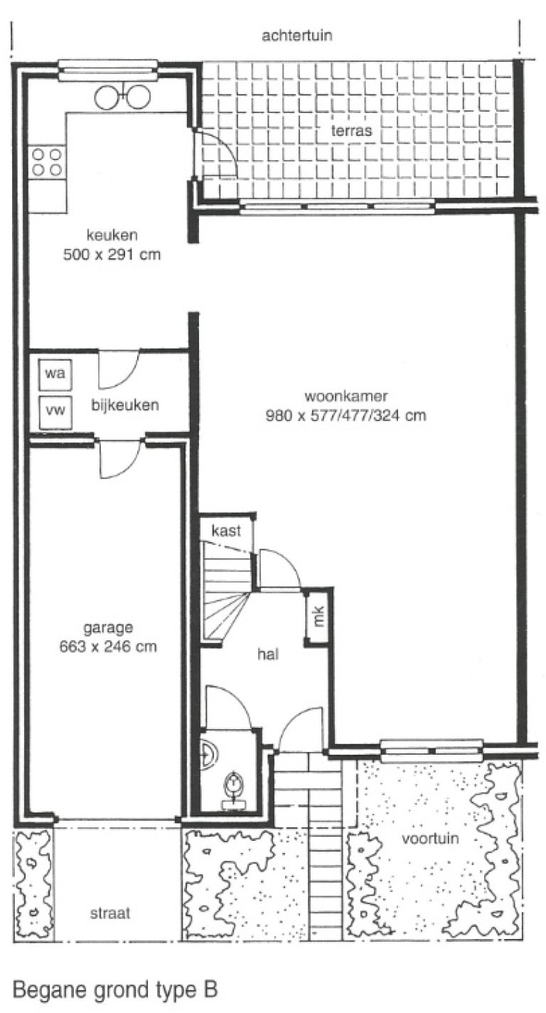
In Noordelijk Niertje staan deze royale herenhuizen met vier slaapkamers. Standaard beschikken ze over een lichte en tuingerichte woonkamer. Afhankelijk van het type is er een halfopen of open keuken. Sommige woningen hebben ook een bijkeuken met aansluiting voor de wasmachine en vaatwasser. De eerste verdieping geeft, via de overloop, toegang tot drie slaapkamers en een comfortabele badkamer met ligbad, separate douche, wastafel en een tweede toilet. De zolderetage, met twee grote dakramen, is geschikt als vierde slaapkamer.
Verzorgd en sfeervol
Deze 112 herenhuizen liggen verspreid over de Schultz van Hagenstraat en Goosse van der Windstraat. Goed onderhouden woningen in een groene wijk met een prettig karakter. Er zijn hoekwoningen met een garage en tussenwoningen met een berging aan straatzijde. Standaard beschikken alle huizen over een kleine voortuin en fijne achtertuin met terras. Voor de auto zijn er volop parkeermogelijkheden in de wijk en zelf direct voor de deur in ruime parkeervakken.
Tussen stad en groen
Aan de uiterste Oostkant van Kralingen ligt het enige en voormalige nieuwbouwproject; Noordelijk Niertje. Een sfeervolle wijk met veel groen en een geheel eigen karakter. Kenmerkend zijn de vele fraaie, monumentale herenhuizen. Voor de dagelijkse boodschappen biedt winkelstraat Lusthof een optimaal aanbod. Zowel de landelijke ketens als lokale speciaalzaken zijn hier te vinden. Natuurliefhebbers vinden in de directe omgeving de unieke bomentuin Trompenburg, het Stadsnatuurpark de Esch en het Kralingse Bos en de Kralingse Plas. De wijk is goed bereikbaar via de nabij gelegen snelwegen A16 en A20, hierdoor ligt het centrum van Rotterdam op vijftien minuten afstand. Ook het openbaar vervoer is goed geregeld. Er zijn diverse bus- en metrolijnen van en naar Rotterdam centrum en tussenliggende wijken.
Gebruik van deze site is onderworpen aan de voorwaarden en beperkingen zoals genoemd in de disclaimer.
Kenmerken
| Huurprijs | € 2.258,- /mnd |
|---|---|
| Waarborg |
Vast inkomen: € 2.258,- / Zelfstandig ondernemers: € 4.516,-
(Let op: dit is een indicatie, afwijkende eisen kunnen voorkomen.) |
| Woonoppervlakte | 180 m2 |
| Slaapkamers | 3 |
| WWS Punten | 315 |
| Status | Verhuurd onder voorbehoud |
| Beschikbaar vanaf | 1 maart 2026 |
| Complex | Algemeen complex (meer informatie over het complex) |
Locatie
Verhuurkantoor
MVGM Amersfoort
Van Asch van Wijckstraat 55
3811LP Amersfoort
+31 88 43 24 700
